SAINT AY | 45
Construit en 2023
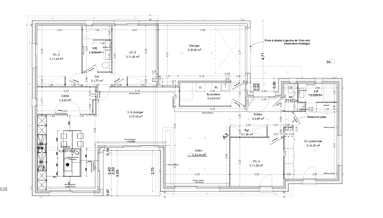
Au sein d’un lotissement récent, cette maison de plain-pied développe une architecture élégante pensée pour s’intégrer naturellement dans un environnement à la fois résidentiel et rural. Les volumes s’articulent autour de toitures à quatre pans associées à des séquences en toits plats, permettant de rythmer les façades et d’optimiser les apports solaires. L’entrée est soulignée par un auvent marqué, tandis qu’une pergola accompagne la terrasse au sud et prolonge les espaces de vie vers le jardin.
L’écriture architecturale mêle enduit ton pierre, parements minéraux et menuiseries sombres pour affirmer une identité contemporaine et qualitative. L’abri de jardin en bardage bois naturel et les terrasses participent à cette harmonie de matières.
La piscine, ses plages minérales et les aménagements paysagers structurent un véritable lieu de détente à l’arrière de la parcelle. Haies mixtes, arbres en bosquets et larges surfaces engazonnées composent un cadre verdoyant qui renforce le confort d’usage et l’intimité des habitants.
Le projet offre ainsi un équilibre entre fonctionnalité, performance bioclimatique et qualité de vie, dans une insertion maîtrisée au sein du quartier.
Siège Social et Agence Centre Val de Loire
Loir et Cher
41350 SAINT-GERVAIS-LA-FORET
Cetin YANAR :
07.83.07.92.60 | contact@by-mo.fr
Agence Pays de la Loire
Vendée
Dorian BONNET :
07.66.94.80.95 | contact@by-mo.fr
SARL au capital de 2000€ | 994 216 182 R.C.S. Blois
BY-MO © 2025 – 2026
