MONDREVILLE | 78
Relevé complet | Réalisé en 2025, avec Géosynthèse
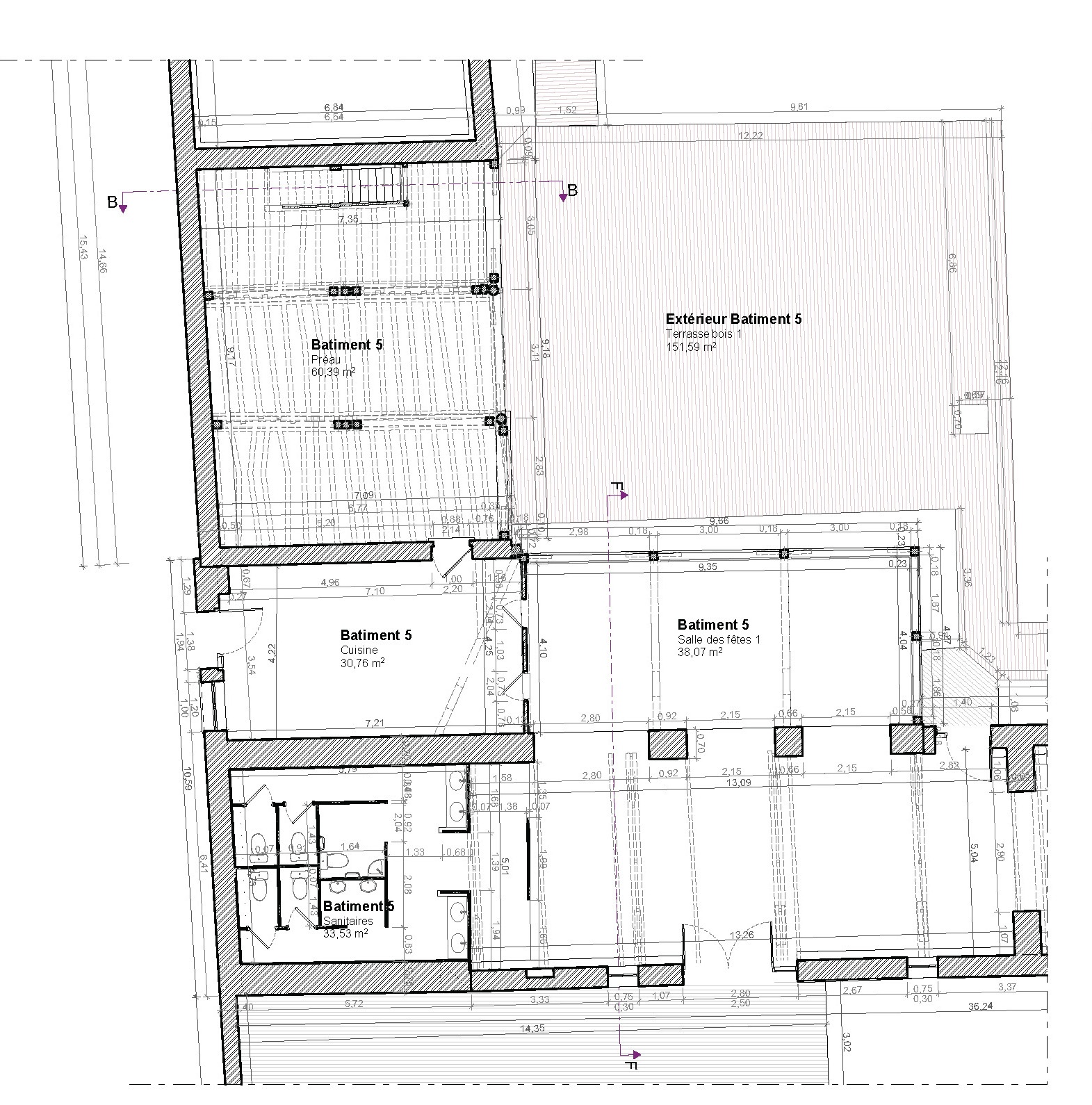
Dans le cadre d’une étude du domaine, un relevé complet de l’ensemble des bâtiments a été réalisé, comprenant plusieurs granges et une demeure bourgeoise située au centre du site. Bien que certains bâtiments aient déjà été rénovés, aucun plan global n’existait auparavant pour documenter précisément l’ensemble des bâtisses.
L’intérieur comme l’extérieur ont été relevés de manière détaillée afin d’établir des plans fiables et cohérents à l’échelle du domaine. Lors de l’intervention, des déformations de charpente ont été observées sur plusieurs bâtiments.
Ces éléments ont conduit à une modélisation complète des charpentes, intégrant les déformations constatées, afin de mieux comprendre le comportement structurel des ouvrages et de disposer d’une base technique précise pour les études et interventions futures.
Siège Social et Agence Centre Val de Loire
Loir et Cher
41350 SAINT-GERVAIS-LA-FORET
Cetin YANAR :
07.83.07.92.60 | contact@by-mo.fr
Agence Pays de la Loire
Vendée
Dorian BONNET :
07.66.94.80.95 | contact@by-mo.fr
SARL au capital de 2000€ | 994 216 182 R.C.S. Blois
BY-MO © 2025 – 2026
